ちょっと変わった物件,純和風,駐車場2台以上
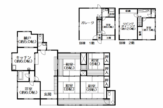
明治初期に建築されたといわれている約150年の歴史ある建物で、なつかしい佇まいの茅葺屋根の古民家です。 湯河原にて天災にも耐えてきた日本の建築の極美を確認できます。建物の程度は良好で、修繕に来ていただいたベテランの大工さんも柱を見て感懐するほど。5K+Sの古民家とガレージつき2LDKの別棟からなり、土地287坪と広いので様々な用途にご検討ください。
♦築年不詳(明治初期と言われております) ♦別棟は未登記(延床92.74㎡) ♦容積率160%(前面道路幅員による制限のため) ♦土砂災害警戒区域(土石流)・洪水浸水想定区域(千歳川)
- 物件番号:
- 2kd-0004700
- ・・・・・主要経路
- 最寄駅:
- 湯河原/駅距離:1.6km
- アクセス:
- 駅歩:20分/バス:9分/停歩:2分
- ・・・・・敷地
- 所在地:
- 静岡県熱海市泉
- 敷地面積:
- 950.39m2 (287.49坪)
- 都市計画:
- 非線引区域
- 地目:
- 宅地
- 用途地域:
- 第二種中高層住居専用地域
- 防火地域:
- 法22・23条地域
- 特別地区:
- 娯楽レクリエーション地区(2種)
- 他法制限:
- がけ条例,宅地造成等規制法
- 前面道路:
- 幅員:3.9 m/北 側
- 建ぺい率:
- 60%/容積率:200%
- 土地権利:
- 所有権
- ・・・・・設備
- 水道:
- 公営水道
- 電気:
- 東京電力
- ガス:
- 個別プロパン
- 排水:
- 本下水
- ・・・・・温泉
- 温泉:
- 不可
- ・・・・・建物
- 構造:
- 木造草葺
- 階数:
- 地上 1 階
- 間取り:
- 5K+S
- 延床面積:
- 122.31m2 (37坪)
- 駐車場:
- 有
- 現況:
- 空
- 現況引渡:
- 相談
- 内見可否:
- 調査中
- ・・・・・管理費等
- 取引態様:
- 媒介













