海眺望,温泉大浴場,屋外プール,別荘にも永住にも,陽当たり良好
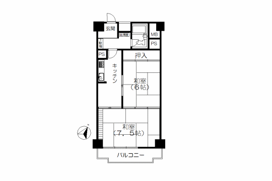
源泉かけ流しの温泉大浴場が人気のリゾートマンション。5階に所在する2Kのお部屋です。バルコニーから相模湾や湯河原の町並みを望みます。お部屋は和室が2部屋あるタイプで、畳の温もり感じる落ち着いた雰囲気です。専有部の浴室は3点タイプのユニットバスになりますが、マンション共有部には大浴場がございますので足を伸ばしてのんびりお風呂に浸かれます。リゾート利用にもご定住にもどちらにもオススメです。
□管理:株式会社東急コミュニティー(全部委託)管理員:日勤 □管理費には水道基本料を含みます □駐車場:屋内8台・屋外24台 定住:36,000円/年 リゾート:12,000円/年(月15日以内) 日貸し:500円/泊
- 物件番号:
- 4ms-0004655
- ・・・・・主要経路
- 最寄駅:
- 湯河原/駅距離:3km(車:8分)
- アクセス:
- ・・・・・敷地
- 所在地:
- 神奈川県熱海市泉231-14
- 都市計画:
- 非線引区域
- 地目:
- 宅地
- 用途地域:
- 第二種中高層住居専用地域
- 防火地域:
- 法22・23条地域
- 特別地区:
- 娯楽レクリエーション地区(2種)
- 土地権利:
- 所有権
- ・・・・・設備
- 水道:
- 公営水道
- 電気:
- 東京電力
- ガス:
- 集中プロパン
- 排水:
- 本下水
- ・・・・・温泉
- 温泉:
- 付
- ・・・・・建物
- 建物名称:
- 湯河原サニーハイツ
- 構造:
- 鉄骨・鉄筋コンクリート造
- 築年月日:
- 1974-08-01(昭和49年)
- 階数:
- 地下 1 階/地上 9 階
- 間取り:
- 2K
- 室位置:
- 9階建ての 5階
- バルコニー:
- 6.4m2 (1.94坪)
- 専有面積:
- 40.5m2 (12.25坪)
- ペット:
- 可(規制有)
- 駐車場:
- 有
- 現況:
- 空
- 現況引渡:
- 相談
- 内見可否:
- 可
- ・・・・・管理費等
- 管理費:
- 16,190円/月
- 修繕積立金:
- 9,741円/月
- 取引態様:
- 媒介







